$195,000
 $1,047 est/mo Sourced by Back At You

815 N Wilson Avenue,Sand Springs, OK 74063

Sand Springs, OK 74063

Share:

Description

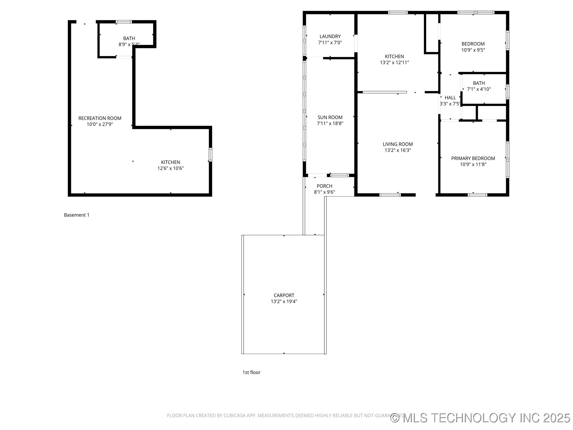
Gorgeous Cottage with separate apartment downstairs creates this 4 bedroom 2 bath house. 3 bedrooms and 1 bathroom are level with the front yard and covered parking. 1 bedroom/bathroom/kitchen are level with the backyard with additional parking near the alley. This apartment under the main house is a 1 bedroom/studio with bathroom and kitchen on the lower level of the home. Both the main house and apartment have new roof, new flooring, new fixtures, new granite counter tops, new cabinets, 2 new water heaters, 2 new hvac units. The electricity has been updated and 2 new electric panels, plumbing has also been updated. Front yard is fenced and backyard is fenced with stairs and rock knee wall separating the yards. This could be the perfect rental investment property for someone that likes low maintenance or a home for your family with a separate suite for a family member. Downstairs there is a utility closet and room for storage plus an extra storage room for the apartment with exterior doors so total 2 extra doors downstairs both for storage space.

Details

MLS #2550602
Listing TypeFor Sale
StyleHouse
Sub-TypeResale
StatusPending
Year1945
Days On Site158
Listing Provided ByOffice Staging Realty | Tobi Cahill

Features

Bed(s)4
Bath(s) 2 Total
SQ Feet1,539
Garage1
Car PortYes
BasementY
Story(s)2
Acreage0.21

Exterior

Lot FeaturesNone

Parking

Garage Yes / NoYes
Parking FeaturesCarport

Taxes

Tax Annual Amount894

Area Information

StateOK
CountyTulsa
CitySand Springs
Zip Code74063
Community NameOak Ridge Add
Sourced by Back At You

Request a showing

Request a showing

Loading Form
MLS Internet Data Exchange (IDX) information is provided exclusively for consumers’ personal, non-commercial use and may not be used for any purpose other than to identify prospective properties consumers may be interested in purchasing, and that the data is deemed reliable but is not guaranteed accurate by the Back at You MLS.

Contact

Learn More About This Property

StateOK
CountyTulsa
CitySand Springs
Zip Code74063
Community NameOak Ridge Add
Sourced by Back At You
Nearby Listings (Within 1/2 mile)
Price: $146K - $243K
sqft: 1,000 - 1,500
Listing Updated: February 23, 2026 at 1:25:09 PM PST

logos here