$499,900
 $2,684 est/mo Sourced by Back At You

316 E 44th Street,Sand Springs, OK 74063

Sand Springs, OK 74063

Share:

Description

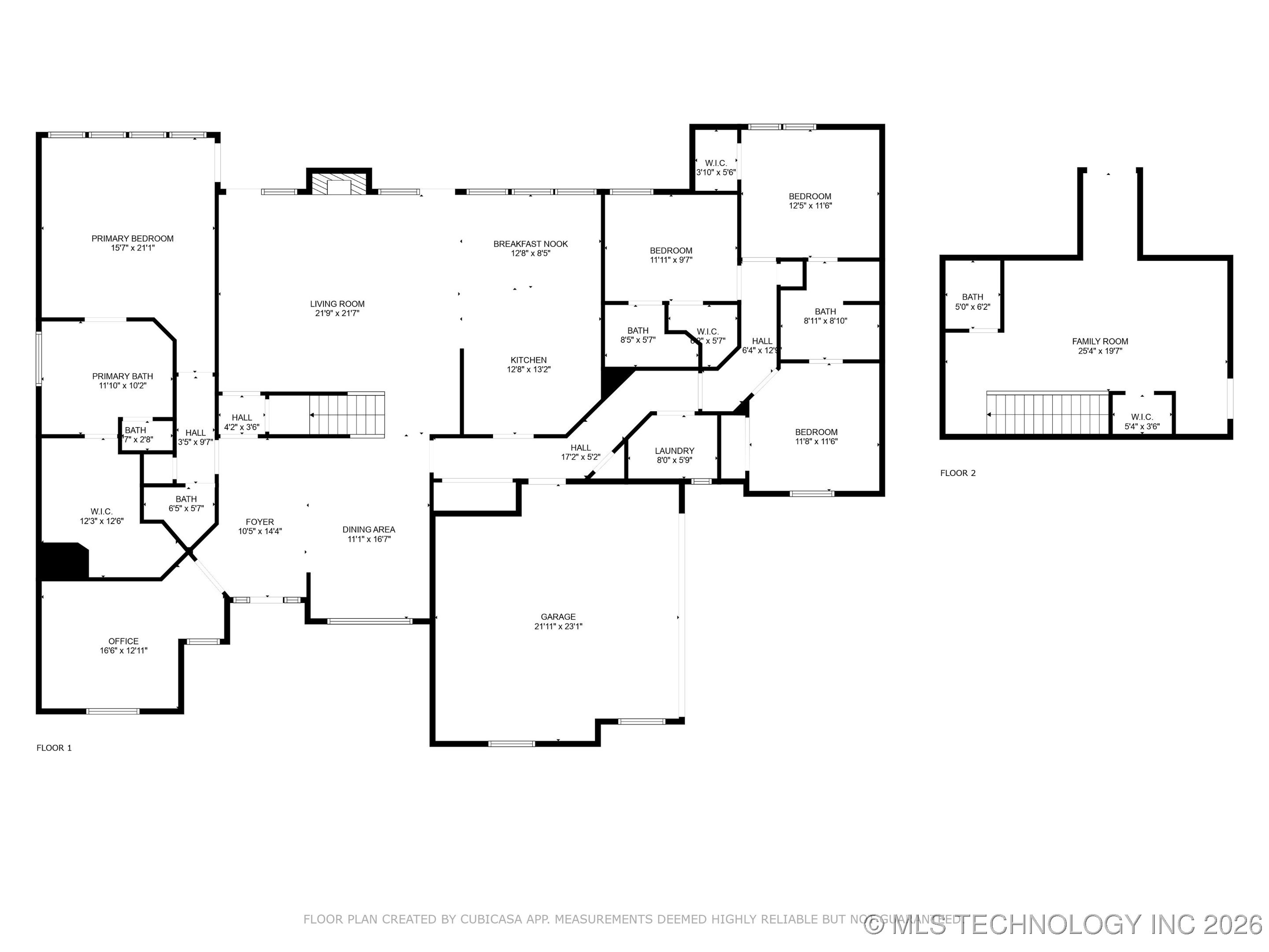
Stunning 1.5-Story Home on Cul-de-Sac Backing to Greenbelt!This beautifully updated home offers elegant living in a serene setting with mature trees and lush landscaping. The grand entry welcomes you with hardwood floors, crown molding, and a spacious office with built-ins. Enjoy entertaining in the formal dining room and relaxing in the inviting living room featuring a gas log fireplace.The open-concept kitchen includes Corian countertops, a breakfast bar, pantry, 5-burner cooktop, built-in microwave, double convection oven, stainless steel appliances, and refinished cabinetry with updated hardware. The adjacent breakfast nook overlooks the backyard and greenbelt.All bedrooms are conveniently located on the main level. The spacious primary suite features a tray ceiling, wall of windows, private patio access, crown molding, and a luxurious bath with double vanities, whirlpool tub, separate shower, and a walk-in closet with built-ins. Two large bedrooms share a Jack & Jill bath, while a fourth bedroom includes its own en-suite full bath. A half bath is available for guests, and the inside utility room includes a sink for added convenience.Upstairs, you'll find a large game room with a balcony and half bathperfect for entertainment, a quiet retreat or 5th bedroom. Additional features include a 3-car garage with a separate single bay, extra parking in front and on the side, sprinkler system, covered front porch, and covered back patio. Recent updates (within 5 years) include interior/exterior paint, bathroom renovations, wood floors, roof, gutters, carpet, French doors, exterior lighting, hot water tank, and more. Kitchen appliances, sink, faucet, disposal, and bedroom carpets were all replaced in 2017.Don't miss this rare opportunity to own a beautifully maintained and updated home in a peaceful cul-de-sac location!

Details

MLS #2603312
Listing TypeFor Sale
StyleHouse
HOA Dues$290
Sub-TypeResale
StatusActive
Year2003
Days On Site116
Listing Provided ByOffice Staging Realty | Kerri Bristow

Features

Bed(s)4
Bath(s) 5 Total
SQ Feet3,319
Garage3
Acreage0.62

Exterior

Lot FeaturesCul De Sac, Greenbelt, Mature Trees, Sloped

Parking

Garage Yes / NoYes
Parking FeaturesAttached, Garage, Garage Faces Side

Taxes

Tax Annual Amount4456

Location

Community FeaturesGutters, Sidewalks

Area Information

StateOK
CountyTulsa
CitySand Springs
Zip Code74063
Community NameThe Ridge at Whispering Creek
Sourced by Back At You

Request a showing

Request a showing

Loading Form
MLS Internet Data Exchange (IDX) information is provided exclusively for consumers’ personal, non-commercial use and may not be used for any purpose other than to identify prospective properties consumers may be interested in purchasing, and that the data is deemed reliable but is not guaranteed accurate by the Back at You MLS.

Contact

Learn More About This Property

StateOK
CountyTulsa
CitySand Springs
Zip Code74063
Community NameThe Ridge at Whispering Creek
Sourced by Back At You
Nearby Listings (Within 1/4 mile)
Price: $374K - $624K
sqft: 2,000 - 4,000
Nearby Listings Property ImageNearby Listings Details
4200 Rustic Road Property Photo 1
$385,000
4200 Rustic Road
Sand Springs, OK 74063
Listing Updated: February 5, 2026 at 9:36:09 AM PST

logos here