$525,000
( $58.98Per Sq Foot )
 $2,818 est/mo Sourced by Back At You

2710 S Cherokee Drive,Muskogee, OK 74403

Muskogee, OK 74403

Share:

Description

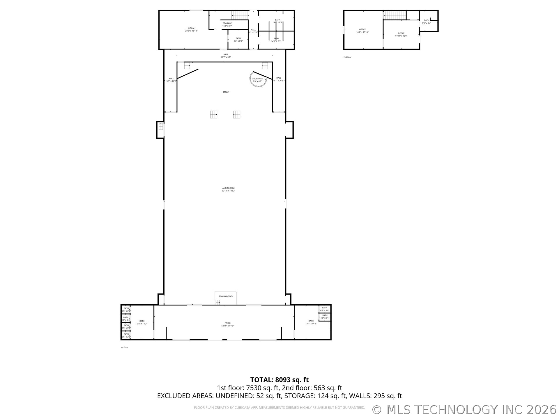
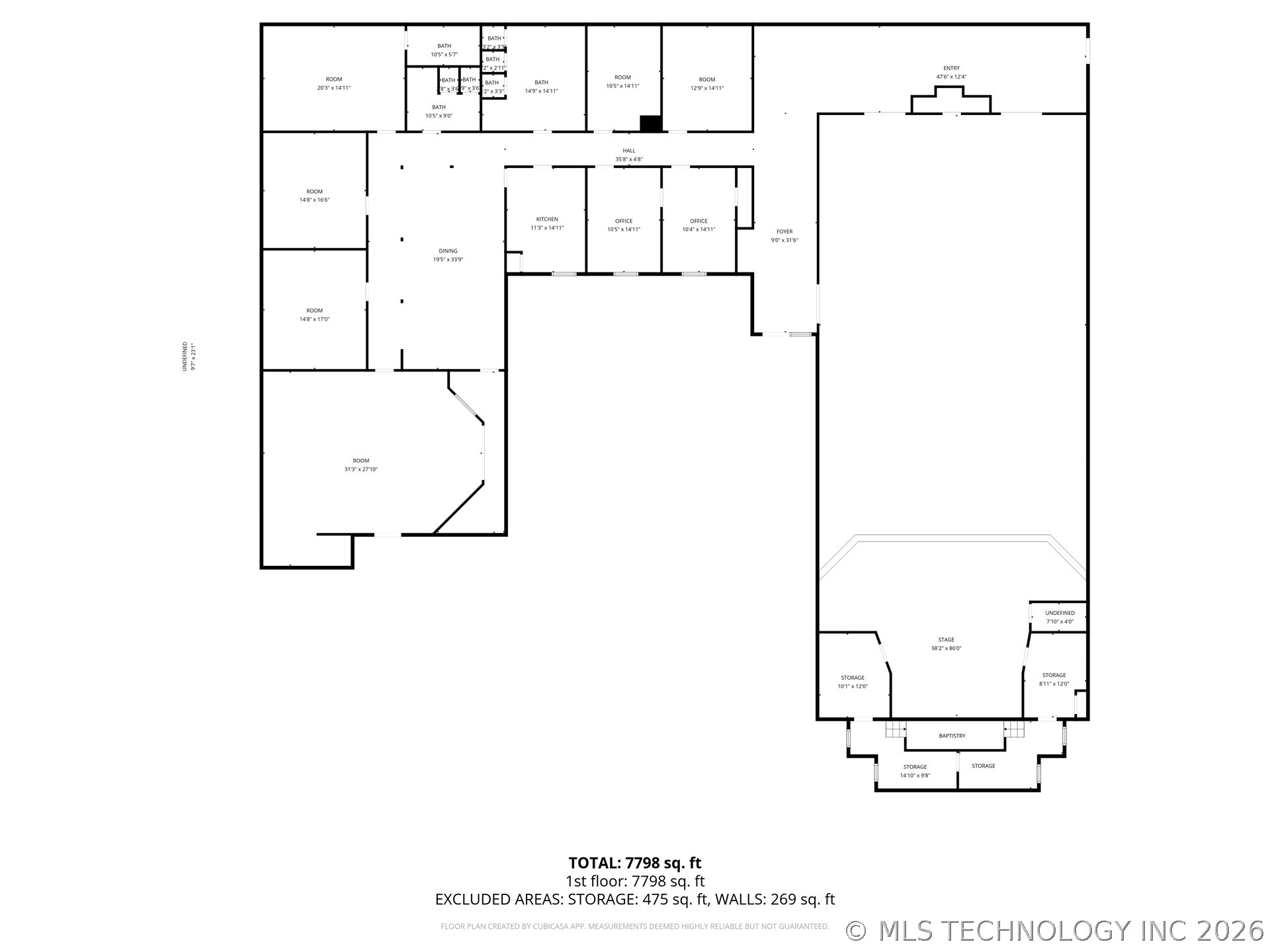
The main church building is 8902 s.f. per appraiser. There are 5 bathrooms and a nursery downstairs. Upstairs is an office area with a bathroom. A 520 s.f. garage/storage building sits behind the church. The auditorium can seat 350-400 comfortably. The 2nd building serves as the youth & children's ministry building & classrooms. This building is 8766 s.f. per appraiser. Included is a kitchen & dining area, offices, bathrooms, a nursery, and a fenced yard/playground. It also has 2 updated HVAC systems. Security systems are in place. There is plenty of parking and room to grow on approx. 4.62 acres m/l. These properties must be sold together. Tax parcels #510052546 & #510012583

Details

MLS #2605106
Listing TypeFor Sale
StyleSpecialpurpose
Sub-TypeResale
StatusActive
Year1990
Days On Site102
Listing Provided ByOffice Staging Realty | Karen Cox

Features

SQ Feet8,902
Story(s)1
ZoningC1
Acreage4.62

Parking

Parking FeaturesOff Street, Parking Spaces

Taxes

Tax Annual Amount0

Area Information

StateOK
CountyMuskogee
CityMuskogee
Zip Code74403
Community NameMuskogee Co Unplatted
Sourced by Back At You

Request a showing

Request a showing

Loading Form
MLS Internet Data Exchange (IDX) information is provided exclusively for consumers’ personal, non-commercial use and may not be used for any purpose other than to identify prospective properties consumers may be interested in purchasing, and that the data is deemed reliable but is not guaranteed accurate by the Back at You MLS.

Contact

Learn More About This Property

StateOK
CountyMuskogee
CityMuskogee
Zip Code74403
Community NameMuskogee Co Unplatted
Sourced by Back At You
Listing Updated: March 10, 2026 at 8:54:30 AM PDT

logos here