$5,000
( $0.87Per Sq Foot )
 $27 est/mo Sourced by Back At You

1907 N 11th Street,Muskogee, OK 74401

Muskogee, OK 74401

Share:

Description

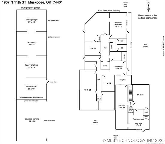
Prime Muskogee location! The Shawnee Bypass corridor is home to flourishing local and national enterprises, and this property sits just a few clicks south of Chick fil A on N 11th St. Zoned C-2, the list of commercial opportunities for this property is long. Newly remodeled with 5 HVAC units, insulated TPO roof, bathrooms, flooring, and paint, the main building features 4485 sqft on the ground floor, with three entrances and 2 additional service entrances. Inside are a dozen rooms that could serve a variety of needs, plus a large 15'x35' conference/assembly space. Upstairs features an additional 1273 sqft of climate-controlled unfinished expansion/storage space. Behind the main building, and enclosed by a fence with gate, are four covered parking spaces, a large shop area, and a 20'x28' garage with 12'x12' overhead door. That's 3578 of work space with 220v electric service. The main building and the shop building behind it together total 9336 square feet. This property is full of possibilities with an attractive and professional facade.

Details

MLS #2546104
Listing TypeFor Sale
StyleMixeduse
Sub-TypeResale
StatusActive
Year1970
Days On Site203
Listing Provided ByOffice Staging Realty | Holly Rosser-Miller

Features

SQ Feet5,758
ZoningC-2

Parking

Parking FeaturesParking Spaces

Taxes

Tax Annual Amount1566

Area Information

StateOK
CountyMuskogee
CityMuskogee
Zip Code74401
Community NameM G Lindsey
Sourced by Back At You

Request a showing

Request a showing

Loading Form
MLS Internet Data Exchange (IDX) information is provided exclusively for consumers’ personal, non-commercial use and may not be used for any purpose other than to identify prospective properties consumers may be interested in purchasing, and that the data is deemed reliable but is not guaranteed accurate by the Back at You MLS.

Contact

Learn More About This Property

StateOK
CountyMuskogee
CityMuskogee
Zip Code74401
Community NameM G Lindsey
Sourced by Back At You
Nearby Listings (Within 1/10 mile)
Price: $3K - $6K
sqft: 4,000 - 7,000
Nearby Listings Property ImageNearby Listings Details
1907 N 11th Street Property Photo 1
$575,000
1907 N 11th Street
Muskogee, OK 74401
1909 N 11th Street Property Photo 1
$99,000
1909 N 11th Street
Muskogee, OK 74401
Listing Updated: February 5, 2026 at 12:36:13 PM PST

logos here