$1,200,000
 $6,442 est/mo Sourced by Back At You

17281 Stone House Road,Luther, OK 73054

Luther, OK 73054

Share:

Description

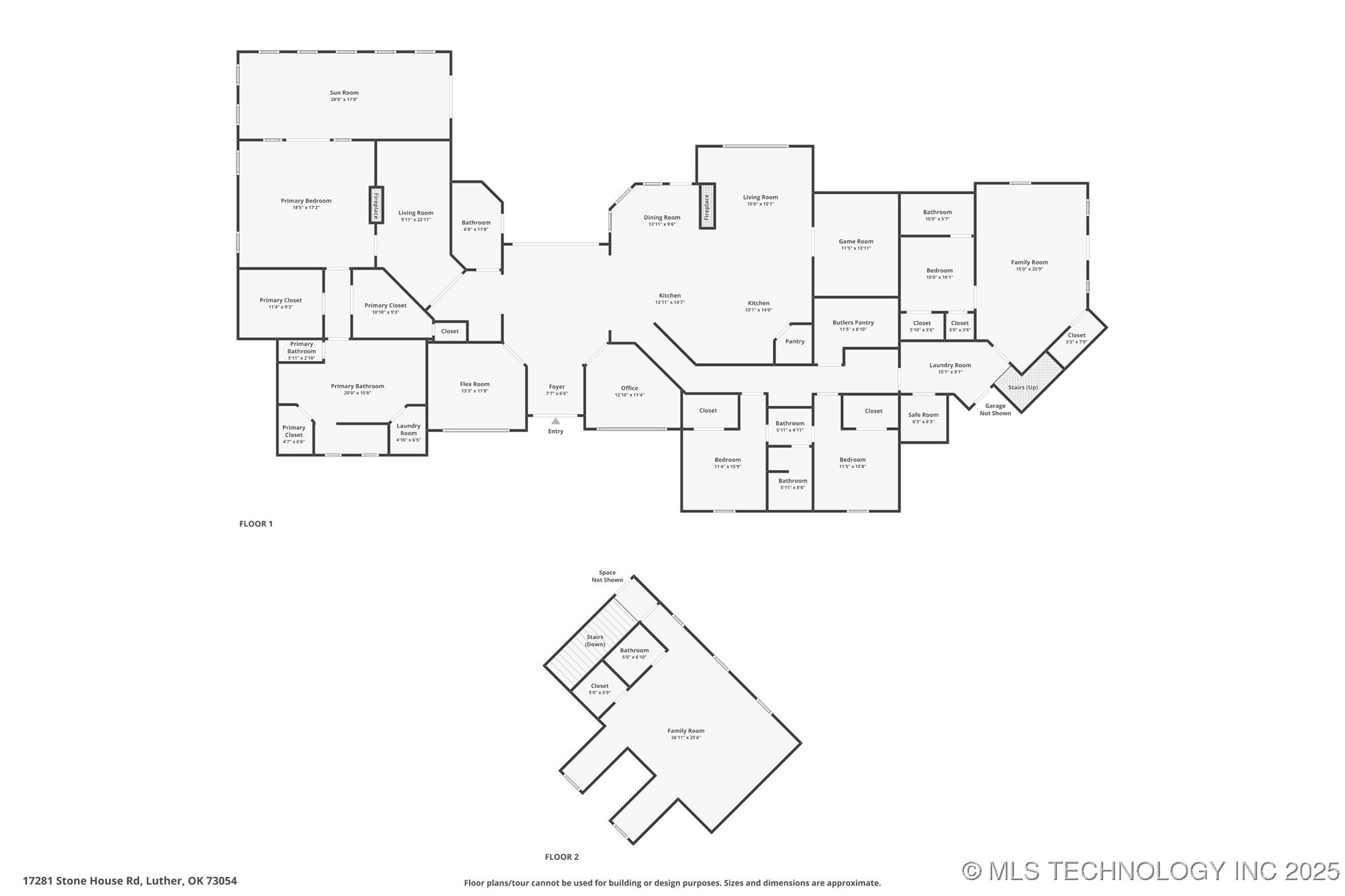
Situated on a private road and surrounded by 5 secluded acres, this expansive home offers exceptional space, comfort, and flexibility. A 24' x 40' concrete pad is already in place, ready for your future shop or outbuilding. The home includes 4 spacious bedrooms and a large bonus room with its own full bathroom and closetideal as a 5th bedroom, guest suite, or play room.. The layout features a unique split floor plan, creating two distinct living wings for added privacy and functionality. On the west side, the primary suite offers a private sitting area with a double-sided fireplace, two oversized walk-in closets, a laundry space, and a sunroom that opens to a covered back patio. Nearby, you'll find a full bath with exterior accessperfect for future outdoor entertaining or pool plansas well as a study, hobby room, and a living area with additional patio access. At the heart of the home, you'll enjoy a formal dining room, media room, second living space, and a well-appointed kitchen with a walk-in pantry. The east wing includes two bedrooms connected by a Jack and Jill bathroom, a butler’s pantry, a dedicated laundry room, a storm-safe room, and a second primary suite with its own covered patio and laundry space. A stairway leads from the laundry room to the bonus room above the garage. Additional features include a 3-car attached garage, propane tank, two tankless water heaters, gas access on the back patio for grilling or a firepit, and multiple access points to the home’s outdoor living spaces. This thoughtfully designed home offers a rare combination of space, privacy, and amenitiesschedule your showing to fully appreciate everything it has to offer.

Details

MLS #2541716
Listing TypeFor Sale
StyleHouse
Sub-TypeResale
StatusActive
Year2023
Days On Site193
Listing Provided ByOffice Staging Realty | Erika Jones

Features

Bed(s)4
Bath(s) 5 Total
SQ Feet5,087
Garage3
Acreage5.00

Exterior

Lot FeaturesMature Trees, Wooded

Parking

Garage Yes / NoYes
Parking FeaturesAttached, Garage

Taxes

Tax Annual Amount710

Area Information

StateOK
CountyOklahoma
CityLuther
Zip Code73054
Community NameStone House Estates
Sourced by Back At You

Request a showing

Request a showing

Loading Form
MLS Internet Data Exchange (IDX) information is provided exclusively for consumers’ personal, non-commercial use and may not be used for any purpose other than to identify prospective properties consumers may be interested in purchasing, and that the data is deemed reliable but is not guaranteed accurate by the Back at You MLS.
StateOK
CountyOklahoma
CityLuther
Zip Code73054
Community NameStone House Estates
Sourced by Back At You
Listing Updated: March 8, 2026, 1:02:58 PM PDT
Real Estate Links Our Domains