$290,000
 $1,557 est/mo Sourced by Back At You

119 Willafa Woods Road,Cartwright, OK 74731

Cartwright, OK 74731

Share:

Description

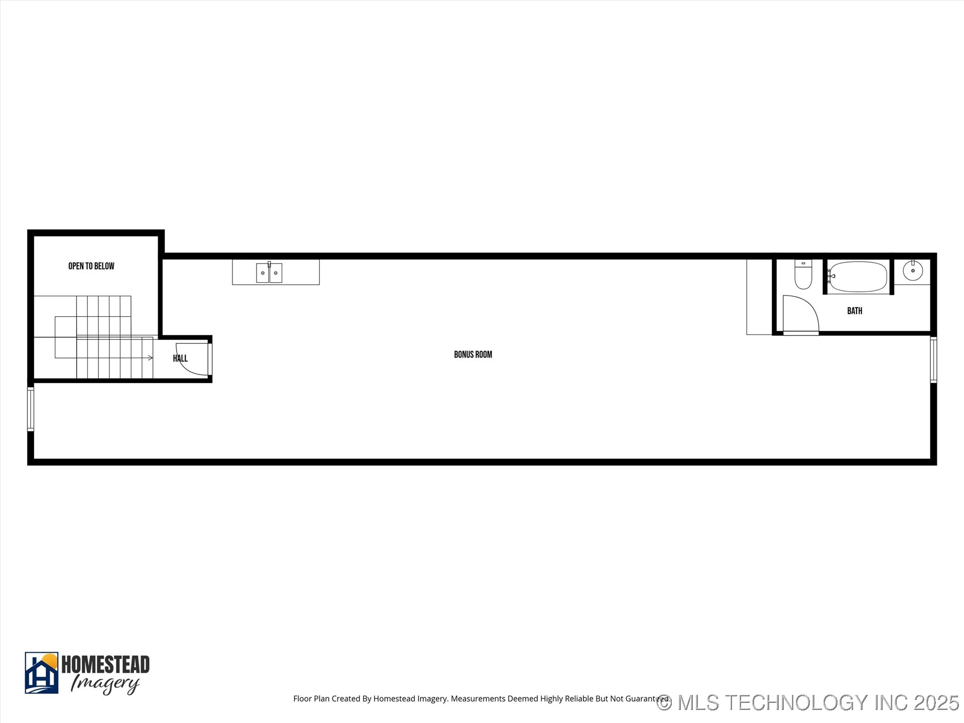
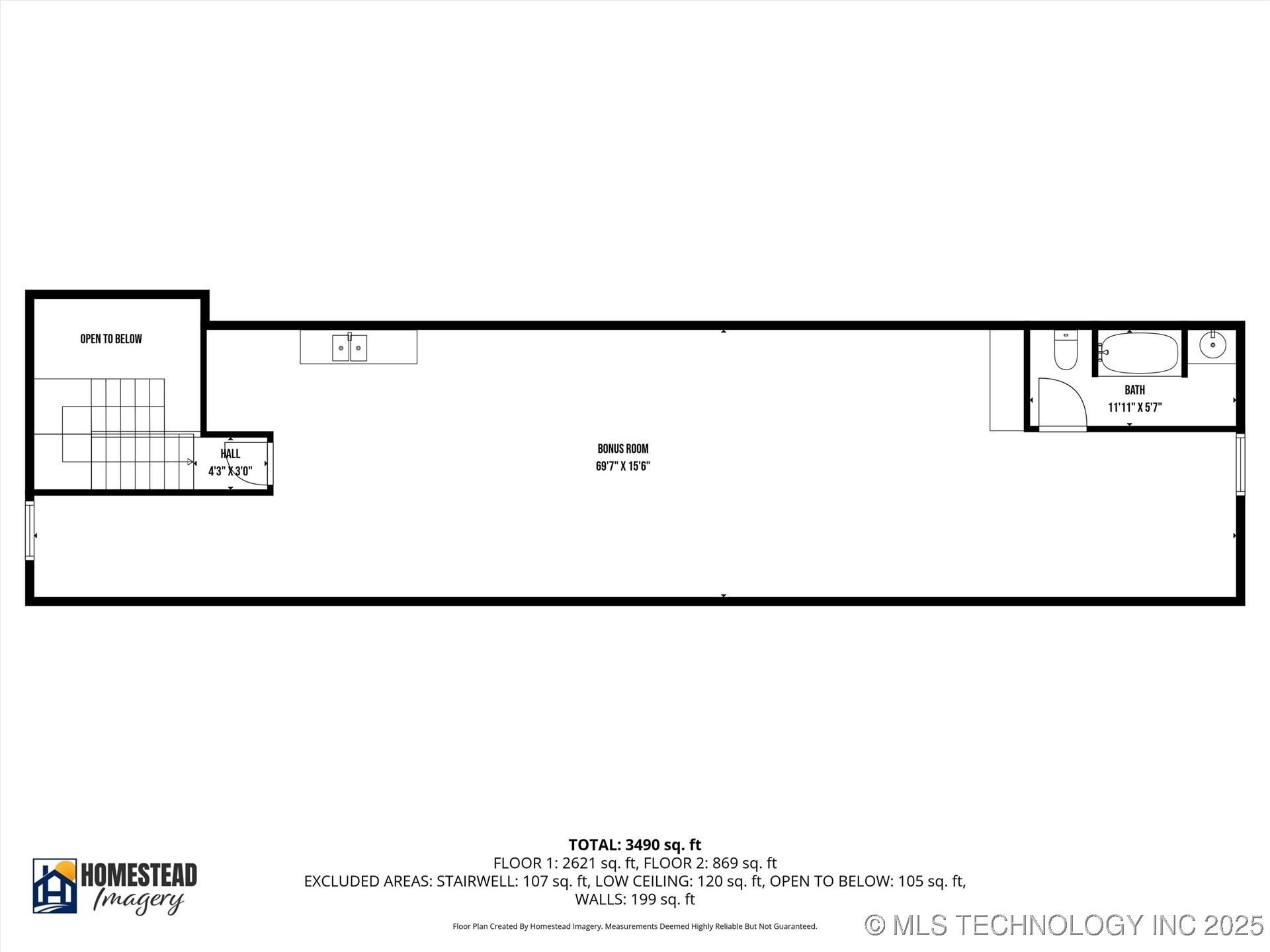
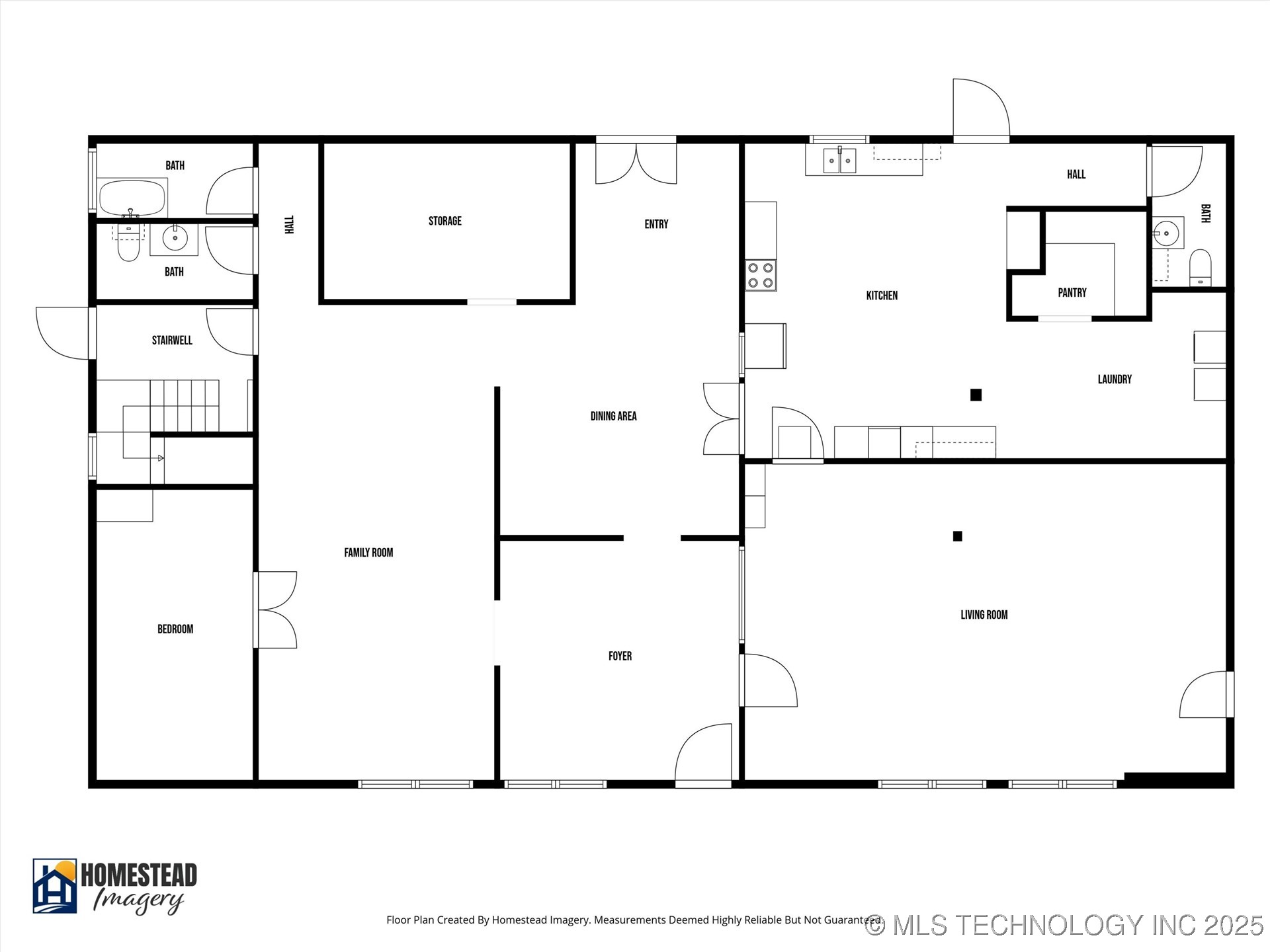
Unique opportunity! Check out the floor plans in the pictures. This property features a spacious layout originally designed as a restaurant, now partially converted into a home. The seller has started the transformation, giving the next owner a head start toward creating a truly one-of-a-kind residence, event space, or mixed-use property. Inside, you'll find an expansive, open main area with soaring ceilings, perfect for a great room, entertaining space, or even a multi-use setup. The floor plan already incorporates several bedrooms, bathrooms, and a kitchen area, with utilities and plumbing in place. With the heavy lifting already started, buyers have the flexibility to complete their vision: finish out as a large family home, develop into a bed and breakfast or repurpose back into a business venture.

Details

MLS #2541459
Listing TypeFor Sale
StyleHouse
Sub-TypeResale
StatusActive
Year1987
Days On Site193
Listing Provided ByOffice Staging Realty | Rhonda Salicos

Features

Bed(s)3
Bath(s) 3 Total
SQ Feet3,490
Garage1
Car PortYes
Acreage1.00
Water FrontYes

Exterior

Lot FeaturesNone

Parking

Garage Yes / NoYes
Parking FeaturesCarport, Driveway

Taxes

Tax Annual Amount1443

Area Information

StateOK
CountyBryan
CityCartwright
Zip Code74731
Community NameCartwright
Sourced by Back At You

Request a showing

Request a showing

Loading Form
MLS Internet Data Exchange (IDX) information is provided exclusively for consumers’ personal, non-commercial use and may not be used for any purpose other than to identify prospective properties consumers may be interested in purchasing, and that the data is deemed reliable but is not guaranteed accurate by the Back at You MLS.
StateOK
CountyBryan
CityCartwright
Zip Code74731
Community NameCartwright
Sourced by Back At You
Listing Updated: February 23, 2026, 9:58:59 AM PST
Real Estate Links Our Domains