$12
( )
 $0 est/mo Sourced by Back At You

1702 4th Avenue NW,West Fargo, ND 58078

West Fargo, ND 58078

Share:

Description

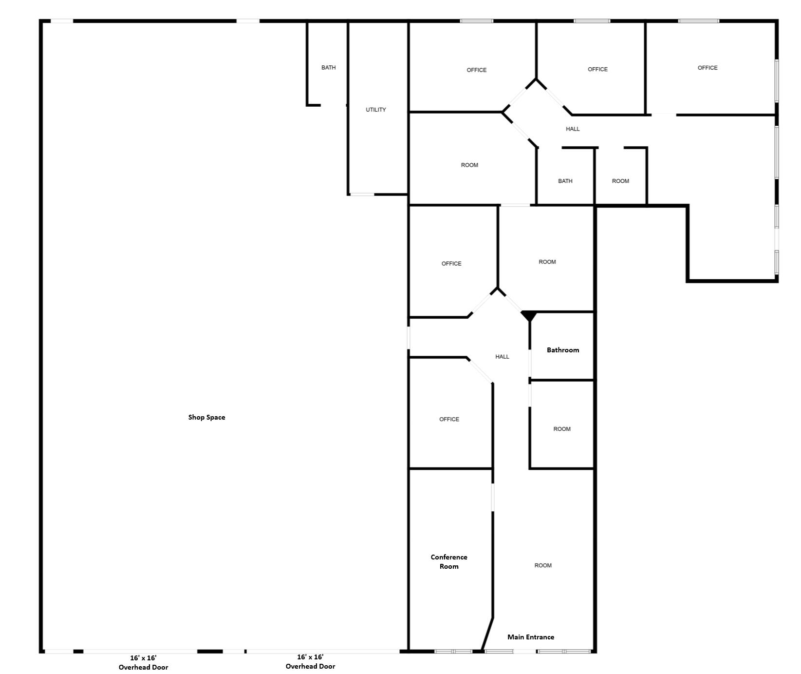
Office and shop space located just off of Main Avenue in the West Fargo industrial area. Huge lot gives easy access and egress from your shop. Newer steel construction building with great exposure and easy accessibility to city and interstate. Shop is 85' deep with gas heat, floor drains, and bathrooms. Office area with front desk, conference room, and multiple offices.

Details

MLS #25-600
Listing TypeFor Lease
StatusActive
Days On Site257
Listing Provided ByCORE Property Group | Jeremy Horst - DR

Features

Area Information

StateND
CountyCass
CityWest Fargo
Zip Code58078
Sourced by Back At You

Request a showing

Request a showing

Loading Form
MLS Internet Data Exchange (IDX) information is provided exclusively for consumers’ personal, non-commercial use and may not be used for any purpose other than to identify prospective properties consumers may be interested in purchasing, and that the data is deemed reliable but is not guaranteed accurate by the Back at You MLS.
StateND
CountyCass
CityWest Fargo
Zip Code58078
Sourced by Back At You
Nearby Listings (Within 1/2 mile)
Price: $9 - $15
sqft: 0 - 0
Nearby Listings Property ImageNearby Listings Details
214 12th Street NW Property Photo 1
$1,750,000
214 12th Street Nw
West Fargo, ND 58078
214 12th Street NW Property Photo 1
$11
214 12th Street Nw
West Fargo, ND 58078
Listing Updated: February 4, 2026, 1:17:59 PM PST
Real Estate Links Our Domains